賃料
20.9万円
(税込)
倉庫

共益費・管理費
11000円
敷金
6ヶ月
所在地-募集中 福岡県福岡市博多区上牟田2丁目7番1号
キアラビル
交通 福岡市地下鉄空港線東比恵駅 徒歩12分
築年月 新築/中古
面積 計測方式
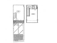
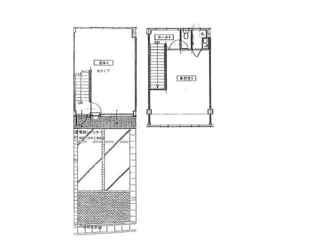
内 訳 1階倉庫34.98㎡(10.58坪)2階事務所40.00㎡(12.10坪)
建物階数 部屋階数 1-2階
部屋/区画番号 総戸/区画数
建物構造
間取内容          
駐車場   取引態様
引渡/入居時期 期日指定 令和7年12月 上旬 現況 賃貸中
地目 宅地 用途地域 準工業
都市計画 市街化区域 地勢
建ぺい率 60% 容積率 200%
周辺環境
設備・条件 エアコン 電動シャッター
物件番号 61

・令和7年11月空室予定
・敷地前面に3台程度駐車可能。
・1階倉庫10.58坪2階事務所12.1坪

 

  • 博多区(倉庫付事務所)入居中 
    福岡市博多区 上牟田2丁目
  • 博多区(倉庫付事務所)入居中 
    福岡市博多区 那珂3丁目
  • 博多区(倉庫付事務所)入居中 
    福岡市博多区 那珂3丁目
  • 博多区(倉庫付事務所)入居中 
    福岡市博多区 博多駅南4丁目8-21
  • 博多区(倉庫付事務所)入居中 
    福岡市博多区 上牟田1丁目
  • 博多区(倉庫)入居中 
    福岡市博多区 上牟田1丁目
※物件掲載内容と現況に相違がある場合は現況を優先と致します。